Description
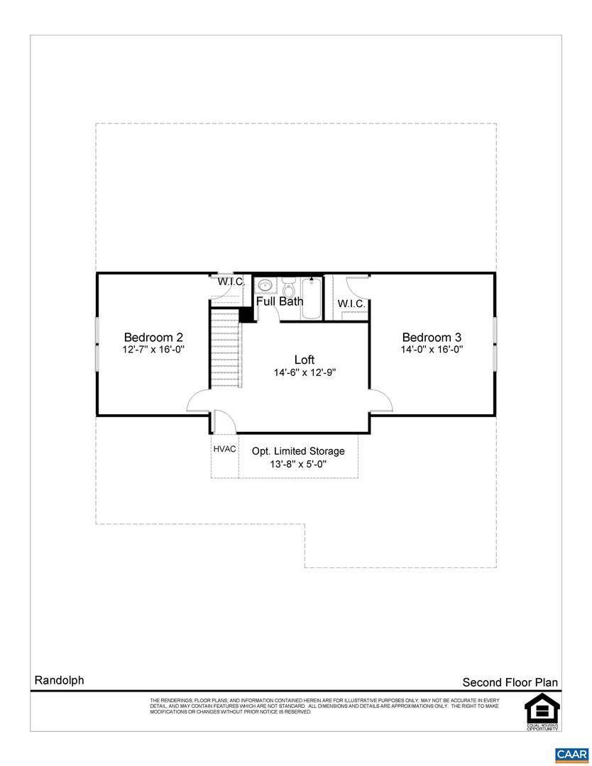
TO BE BUILT! Ask about structural options and homesites. The Randolph is a modest-sized two-story home designed for both comfort and efficiency. As you enter, the main level welcomes you with a flex room and wide foyer, which opens into the living room and kitchen. The primary suite is conveniently located on the main floor, making it accessible and private. It includes a well-appointed bathroom and a generous closet. Upstairs, there are two sizeable bedrooms, a loft area for a secondary living space, and a shared full bathroom. The Randolph is thoughtfully designed for storage with a walk-in kitchen pantry, walk-in closets in every bedroom, and walk-in unfinished storage. This plan is ideal if you are looking for flexibility without excess. The home is being built in Compass Cove, where luxury living meets water access to the beauty of Lake Anna. Whether this is your forever home or an investment opportunity, Compass Cove is an exciting new neighborhood for both. Photos for advertising purposes. Optional upgrades not included in list price. The Randolph can be customized to lifestyle and personal aesthetic.,Granite Counter
-
3BEDS
-
1.56ACRES
-
2BATHS
-
11/2 BATHS
-
2,431SQFT
-
$216$/SQFT
School Information
Description
TO BE BUILT! Ask about structural options and homesites. The Randolph is a modest-sized two-story home designed for both comfort and efficiency. As you enter, the main level welcomes you with a flex room and wide foyer, which opens into the living room and kitchen. The primary suite is conveniently located on the main floor, making it accessible and private. It includes a well-appointed bathroom and a generous closet. Upstairs, there are two sizeable bedrooms, a loft area for a secondary living space, and a shared full bathroom. The Randolph is thoughtfully designed for storage with a walk-in kitchen pantry, walk-in closets in every bedroom, and walk-in unfinished storage. This plan is ideal if you are looking for flexibility without excess. The home is being built in Compass Cove, where luxury living meets water access to the beauty of Lake Anna. Whether this is your forever home or an investment opportunity, Compass Cove is an exciting new neighborhood for both. Photos for advertising purposes. Optional upgrades not included in list price. The Randolph can be customized to lifestyle and personal aesthetic.,Granite Counter
©2025 Bright MLS, All Rights Reserved. IDX information is provided exclusively for consumers' personal, non-commercial use and may not be used for any purpose other than to identify prospective properties consumers may be interested in purchasing. Some properties which appear for sale may no longer be available because they are for instance, under contract, sold, or are no longer being offered for sale. Information is deemed reliable but is not guaranteed accurate by the MLS or Gail Nyman Group | Re/Max United Real Estate. Some real estate firms do not participate in IDX and their listings do not appear on this website. Some properties listed with participating firms do not appear on this website at the request of the seller. Data last updated: 2025-12-10T21:57:43.543.
